Početna stranica
Novosti
Projekti
Katalog
Kontakti
O nama
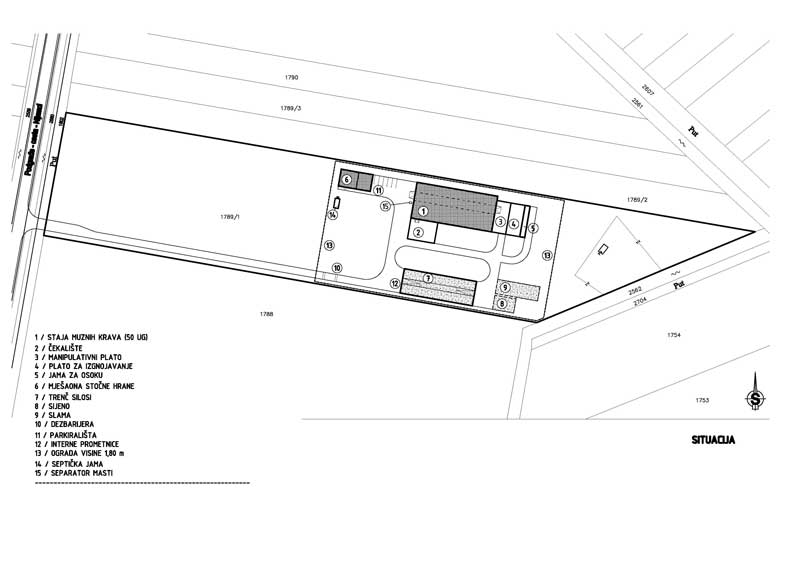
FARME:
VRŠIMO IZRADU KOMPLETNE PROJEKTNE DOKUMENTACIJE I NADZOR IZGRADNJE FARMI
Pogledajte naše izdvojene primjere:
Situacija:
Taenia d.o.o. - Sva prava pridržana
Powered by
mediaportal.hr